Location: Home > Product
Product
Product

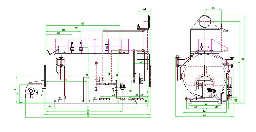
Energy-efficient horizontal steam boiler

Boiler system: 6t/h and above

Steam and feed flow diagram

WNS2-6t/h type vapor condensing boiler

 

Length (mm)

Foundation

Base

Transportation clearance

Max overall dimension

Water inlet

Burner center

Equipment center

Dewatering outlet

Air outlet

Control cabinet

Evaporation capacity

s

a1

a2

a3

b1

b2

b3

c1

c2

c3

D1

d2

d3

f

g

w

q

p

1t/h

100

2390

1400

355

3130

1970

2475

3700

2410

3300

3650

970

335

895

1200

1150

1.5t/h

100

2750

1500

425

3430

2090

2575

4250

3350

3450

2310

965

335

900

1250

1420

2t/h

100

2680

1600

525

3650

2200

2514

4680

2826

3745

2290

1065

375

980

1400

1500

3t/h

100

3450

1700

325

4550

2343

2502

5200

2725

4050

2905

1200

375

1030

1450

1220

1220

1500

4t/h

100

3770

1800

485

5020

2350

2804

5720

3120

4675

3360

1300

385

1130

1550

1026

1226

1660

6t/h

100

4200

2000

750

5660

2655

3004

6350

Length (mm)

Manual sewage draining exit

Continuous drainage outlet

Relief valve connector

Main steam interface

Assistant steam interface

Chimney breast

Evaporation capacity

e1

e2

e3

e4

e5

e6

k1

k2

k3

k4

k5

k6

m1

m2

n1

n2

h

1t/h

370

230

850

308

1575

2262

355

2805

450

1980

2382

2350

2312

3020

1.5t/h

370

235

900

308

1150

2362

360

2985

450

2250

2482

2900

2412

3225

2t/h

360

260

1000

358

1050

2632

405

3257

600

2150

2792

2900

2662

2495

3t/h

400

260

1000

358

1250

2737

405

3513

700

2550

2912

3050

2762

3775

4t/h

400

260

1150

370

700

1344

1160

1560

2924

435

4045

925

2880

3154

4080

3004

4325

6t/h

370

270

1300

352

980

1200

1270

1790

3141

635

4465

975

3310

3406

3860

3206

4770

WNS8-20t/h type vapor condensing boiler

Length (mm)

Foundation

Base

Transportation clearance

Max overall dimension

Water inlet

Burner center

Equipment center

Dewatering outlet

Air outlet

Control cabinet

Evaporation capacity

s

a1

a2

a3

b1

b2

b3

c1

c2

c3

d1

d2

d3

f

g

w

q

p

8t/h

100

5150

1990

525

6690

2750

3191

7820

3415

5550

4730

1500

396

1205

1735

1400

1180

1870

10t/h

100

5690

2050

585

7290

2850

3293

8420

3712

5935

5000

1600

400

1260

1785

1045

1075

1850

12t/h

400

5000

2500

850

7460

3130

3740

8590

3815

6470

4770

1780

742

1480

2080

1440

1470

1865

15t/h

500

6100

2720

565

7530

3740

4010

9820

3735

6845

5135

1885

852

1660

2250

1500

1530

1910

20t/h

400

6800

2800

450

8500

3750

3960

11090

5100

7020

Length (mm)

Manual sewage draining exit

Continuous drainage outlet

Relief valve connector

Main steam interface

Assistant steam interface

Chimney breast

Evaporation capacity

e1

e2

e3

e4

e5

e6

e7

k1

k2

k3

k4

k5

k6

M1

m2

n1

n2

h

8t/h

3960

380

300

1150

335

1000

1485

1650

2200

3326

735

4795

1050

3850

3391

4650

3391

5152

10t/h

4500

380

300

1200

355

1150

1485

2050

2600

3428

720

5157

1180

4250

3773

5050

3493

5485

12t/h

5400

400

260

1500

332

1090

1763

1690

2290

3888

820

5590

1180

4200

4338

4110

3938

5970

15t/h

2300

410

270

1650

390

1600

1600

1600

2250

4168

870

5768

1280

4000

4608

5000

4208

6292

20t/h

6000

400

100

1650

324

1400

1600

2850

3550

4520

1070

6272

1230

4400

4960

5250

4560

6750

Structural features

※ Compact structure, attractive appearance.
※ Steel tube economizer is easy to disassembly, and can save floor area.
※ Reasonable design of heating surface can effectively control resistance of smoke.
※ Appropriate control of exhaust gas temperature can guarantee boiler efficiency.
※ Adopts unique detachable smoke box, thus it is easy for maintenance.
※ Special spring type explosion door and guarantee safety of boiler.
※ Adopts control system of programmable logic controller (PLC) and touch screen.
※ All-around online help, multilevel Chinese pop-up menu and breakdown maintenance manual.
※ All-around safety interlocking protection function can ensure the safe and efficient operation of boiler.
※ Sufficient PLC reserved port and modular expanding module can realize group control, remote control and building control.




Pre: Large-scale tower
Next: Condensing horizontal hot water boiler